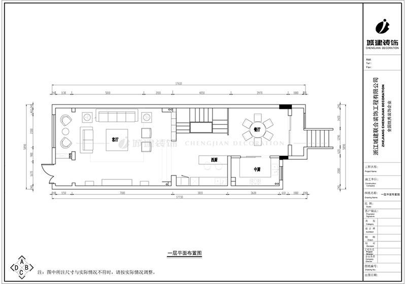
一進門,以淺灰色為主基調的理性空間,加入了高貴優(yōu)雅的酒紅色,內斂的奢華氣質撲面而來;
金屬元素的輕奢點綴以及水晶吊燈折射的璀璨,營造了一個浪漫精致的美學空間。













金屬造型屏風在起到遮擋過渡作用的同時,光線透過玻璃為理性的空間增添一絲靈動;


穿過客廳,看到的是面對樓梯的開放式西廚區(qū),它緩解了大空間的視覺疲勞,營造空間層次感;
島臺讓客廳與廚房這兩個空間形成有序的交流。


餐廳,大理石背景墻奢華大氣;圓餐桌、圓吊頂讓硬朗的空間變得柔和,圍合的用餐方式更顯溫馨。



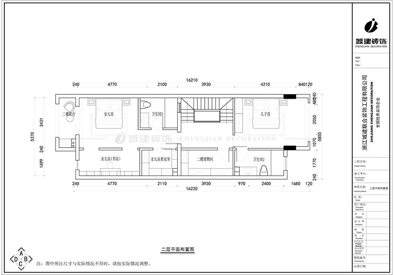
玻璃扶手簡約時尚、壁燈增添氛圍感、抽象裝飾畫裝扮墻面,走到這兒仿佛走在藝術展館的樓梯間。



廚房較為狹窄,玻璃移門讓空間有延伸感,光線更充足;淺灰色櫥柜與整體風格統(tǒng)一。



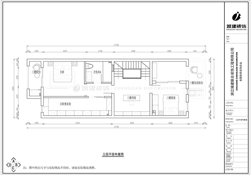
主臥,墨綠色背景鑲嵌金屬裝飾線條,圓角吊頂金屬裝飾走邊,內嵌式燈槽搭配輕奢吊燈,整個空間雍容華貴、典雅靜謐。




女兒房,選擇溫柔的粉色系,簡潔的直角走邊吊頂用細金屬條裝飾,床頭射燈營造溫馨氛圍,整個空間青春靚麗。



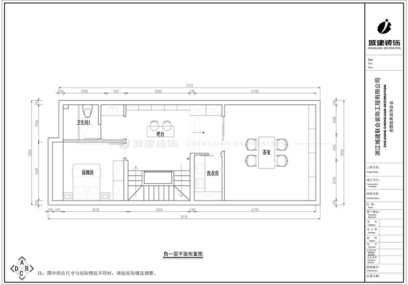
利用寬敞的樓道空間,打造休閑吧臺:一面錯落有序的酒柜,收納各類佳釀,閑時小酌兩杯,幸福~



衛(wèi)生間依然延續(xù)灰色主基調,空間黑灰白的經典搭配簡潔大氣,質感滿滿。












