本案女業(yè)主是一位美麗溫柔的太太,充分溝通過之后定位了美式風格,在色彩上以溫柔的米色為主色調(diào),客廳與餐廳的吊頂大膽的選擇了孔雀藍,讓整個空間在柔和之中,更顯精致時尚。在家具軟配上,選擇了很多碎花圖案搭配,讓這個家感覺更溫馨。
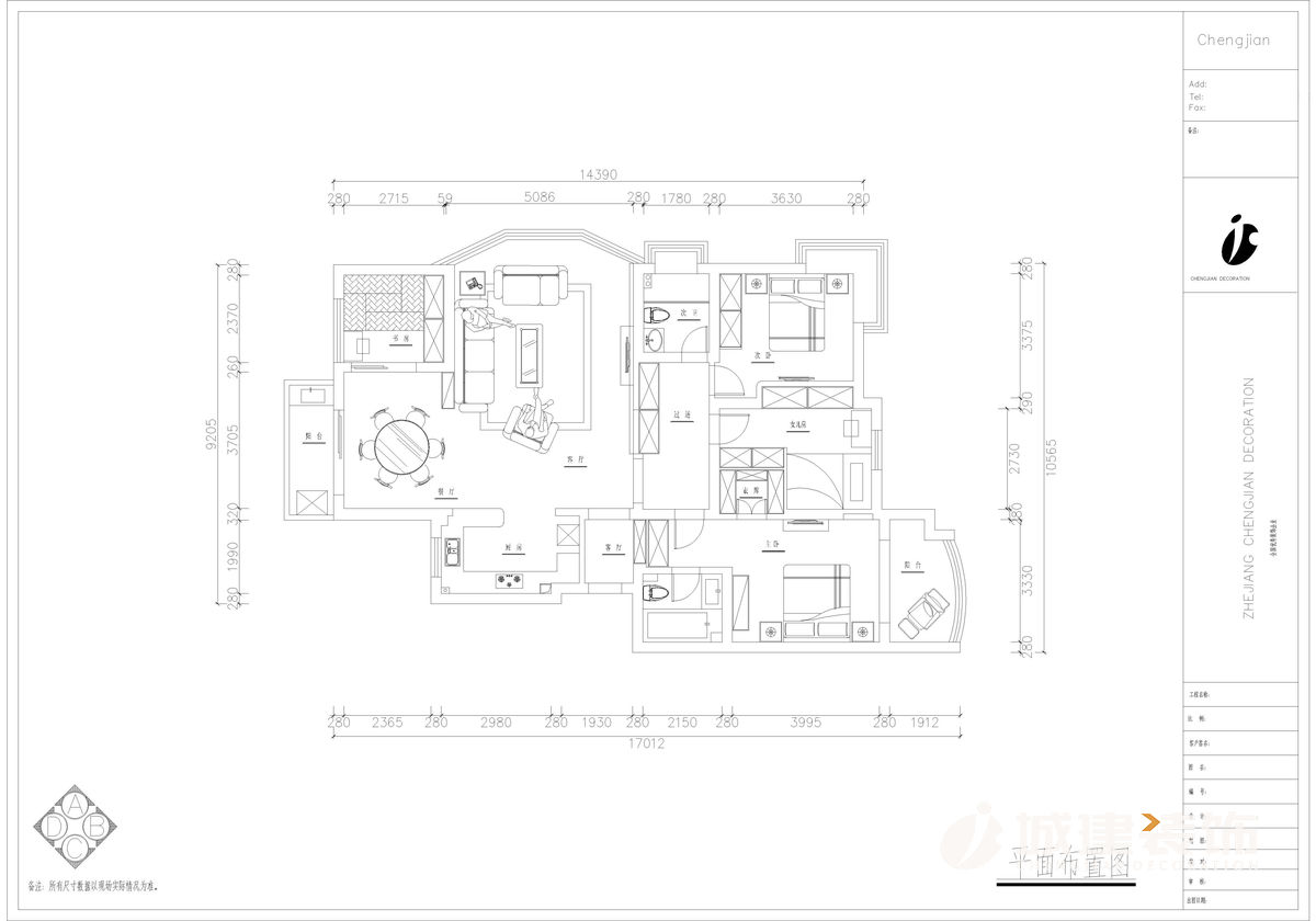
本案結(jié)構(gòu)上沒有做大改動,但是充分利用了各個角落,儲物空間滿足了業(yè)主日常所需。















 
    本案女業(yè)主是一位美麗溫柔的太太,充分溝通過之后定位了美式風格,在色彩上以溫柔的米色為主色調(diào),客廳與餐廳的吊頂大膽的選擇了孔雀藍,讓整個空間在柔和之中,更顯精致時尚。在家具軟配上,選擇了很多碎花圖案搭配,讓這個家感覺更溫馨。
本案結(jié)構(gòu)上沒有做大改動,但是充分利用了各個角落,儲物空間滿足了業(yè)主日常所需。















 
                             
                             
                             
                             
                             
                             
                             
                             
                             
                             
        你家預(yù)算
108080元
0元電話報價
0571-87248729